« réunir »
Nantes – 2017

Mission complète

– Surface réaménagée: 56 + 119 m² 

– Durée du chantier: 8 mois

– Chantier réalisé en 2017

– Maitrise ouvrage privée

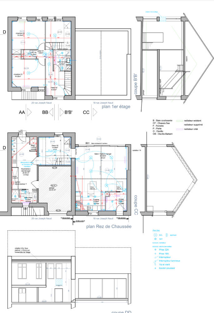
Apres un premier projet pour la transformation de leur maison « à la nantaise », les clients ont eu l’opportunité d’acheter la maison mitoyenne.

le nouveau projet a donc consisté en la réunion des ces 2 maisons. une maison à Rez de chaussée accueille la partie cuisine et pièce de vie tandis que l’autre maison sur 3 niveaux, reçoit les chambres/salle de bain ainsi que le garage et la buanderie.

la piece de vie est largement ouverte sur le jardin grace à la création d’une grande baie coulissante 6 vantaux de 6.00m par 2.50m de haut.