« rénovation d’une dépendance »
Sarzeau – 2025

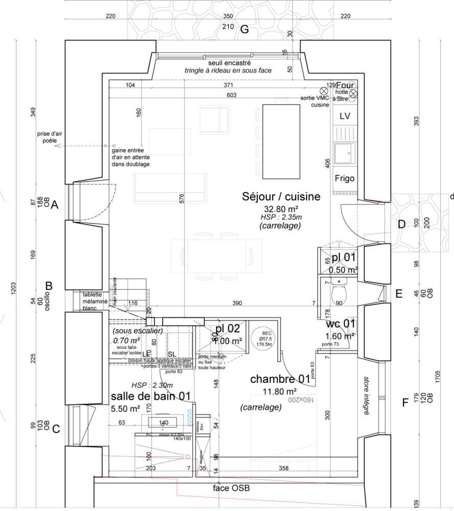
Mission complète

– Surface réaménagée: 88 m²

– Maitrise ouvrage privée

Rénovation complète de la dépendance d’un manoir.

Modification des espaces intérieurs et création d’ouvertures sur le pignon pour offrir de nouvelles vues sur le jardin et profiter de l’apport de lumière par l’Ouest. Les façades donnant sur le manoir sont traitées avec un minimum d’interventions  dans le respect de l’existant et en limitant les vue sur la cour.

L’ensemble des façades est rejointoyait, avec un enduit à base de chaux, afin d’assurer la pérennité du bâtiment.