« Meuble bibliotheque d’angle »
Nantes – 2025

Mission complète :

– conception et dessin du meuble en collaboration avec la Menuiserie Robin.

– Maitrise ouvrage : Privé

Meuble bibliothèque sur mesure – intégration autour d’une baie d’angle

Ce projet d’aménagement visait à meubler une partie du salon autour d’une baie vitrée d’angle, tout en préservant la luminosité naturelle et la vue dégagée sur le jardin.

L’enjeu principal était de créer un meuble à la fois fonctionnel et discret, capable de structurer l’espace sans l’alourdir visuellement.

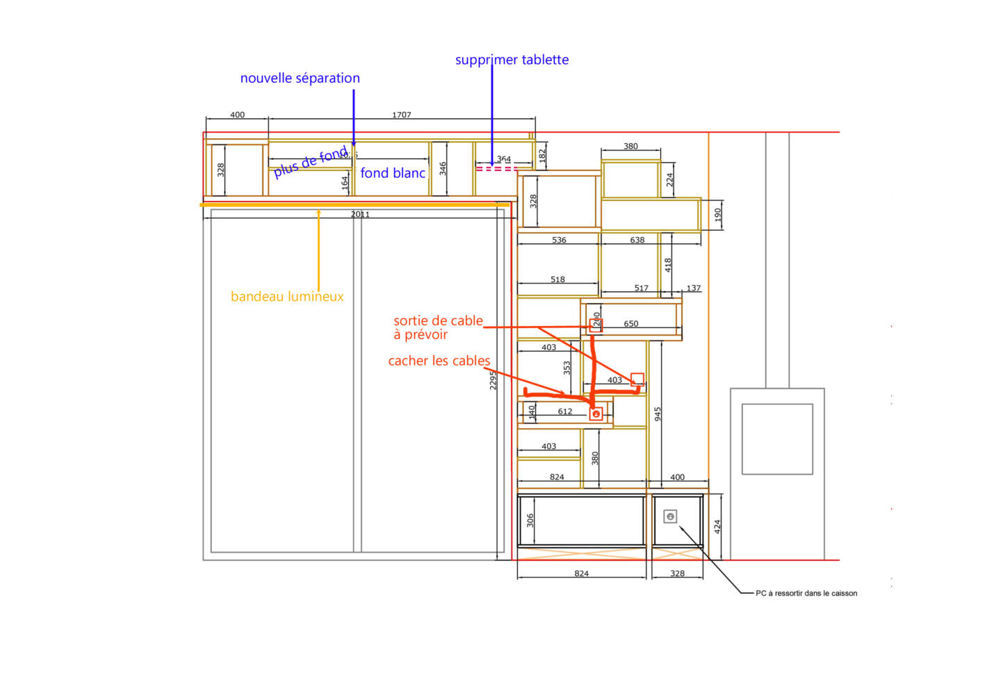
Le meuble se compose d’une bibliothèque en tripli bouleau, au design dissymétrique et décalé, apportant du rythme et de la légèreté. Ce choix de composition permet d’éviter la rigidité habituelle des structures linéaires, tout en conservant une grande capacité de rangement.

Le bois clair et les chants apparents du tripli bouleau offrent une finition soignée et chaleureuse, en cohérence avec l’ambiance lumineuse du salon. Les niches de formats variés permettent d’accueillir livres, objets décoratifs, éléments hi-fi et tourne-disque. Les alimentations et éléments techniques sont cachés dans un double fond.

En partie haute, la bibliothèque se prolonge discrètement au-dessus de la baie d’angle, sans obstruer la lumière ni couper la perspective sur le jardin. Le meuble s’intègre ainsi naturellement dans l’architecture existante, jouant avec les volumes et les ouvertures pour créer une présence légère mais structurante.