Rénovation pièce de vie

« Transformer un bâti en logement performant et lumineux »
Nantes – 2025

Mission complète :

– Surface réaménagée: 83 m²

 – durée du chantier : 8 mois

– Maitrise ouvrage privée

Rénovation énergétique complète d’une maison en fond de parcelle

Description du projet :

Ce projet porte sur la rénovation énergétique globale d’une petite maison située en fond de parcelle, récemment séparée de l’habitation principale après une division foncière. Les propriétaires ont souhaité la réhabiliter entièrement afin de la proposer à la location, tout en améliorant fortement ses performances énergétiques et son confort.

L’état initial du bâti présentait de nombreuses insuffisances : absence totale d’isolation sur les murs, garage en terre battue, menuiseries vieillissantes et équipements sanitaires obsolètes. L’objectif était donc de transformer ce bâtiment dégradé en un logement moderne, sain et performant.

Un projet ambitieux visant un DPE A / B :

Pour atteindre une haute performance énergétique, plusieurs interventions majeures ont été réalisées :

– Isolation thermique par l’extérieur (ITE) en polystyrène PSE de 15 cm sur les façades Nord et Est.
– Côté rue, l’ITE est limitée à l’étage conformément aux règles d’urbanisme.
– Isolation des rampants des combles en laine biosourcée.
– Installation d’une VMC performante pour un air sain et maîtrisé.
– Remplacement des ballons d’eau chaude par une PAC air/eau.
– Pose de volets roulants solaires permettant d’améliorer le confort d’été.

Réécriture des façades et valorisation des volumes :

L’enveloppe extérieure n’est pas modifiée en volume, mais les façades ont été retravaillées :

– création de nouvelles baies,
– suppression d’ouvertures inadaptées,
– mise en place d’un bardage bois vertical en partie haute (douglas 45×45 mm, claire-voie, finition naturelle),
– application d’un enduit clair sur la partie basse visible depuis la rue.

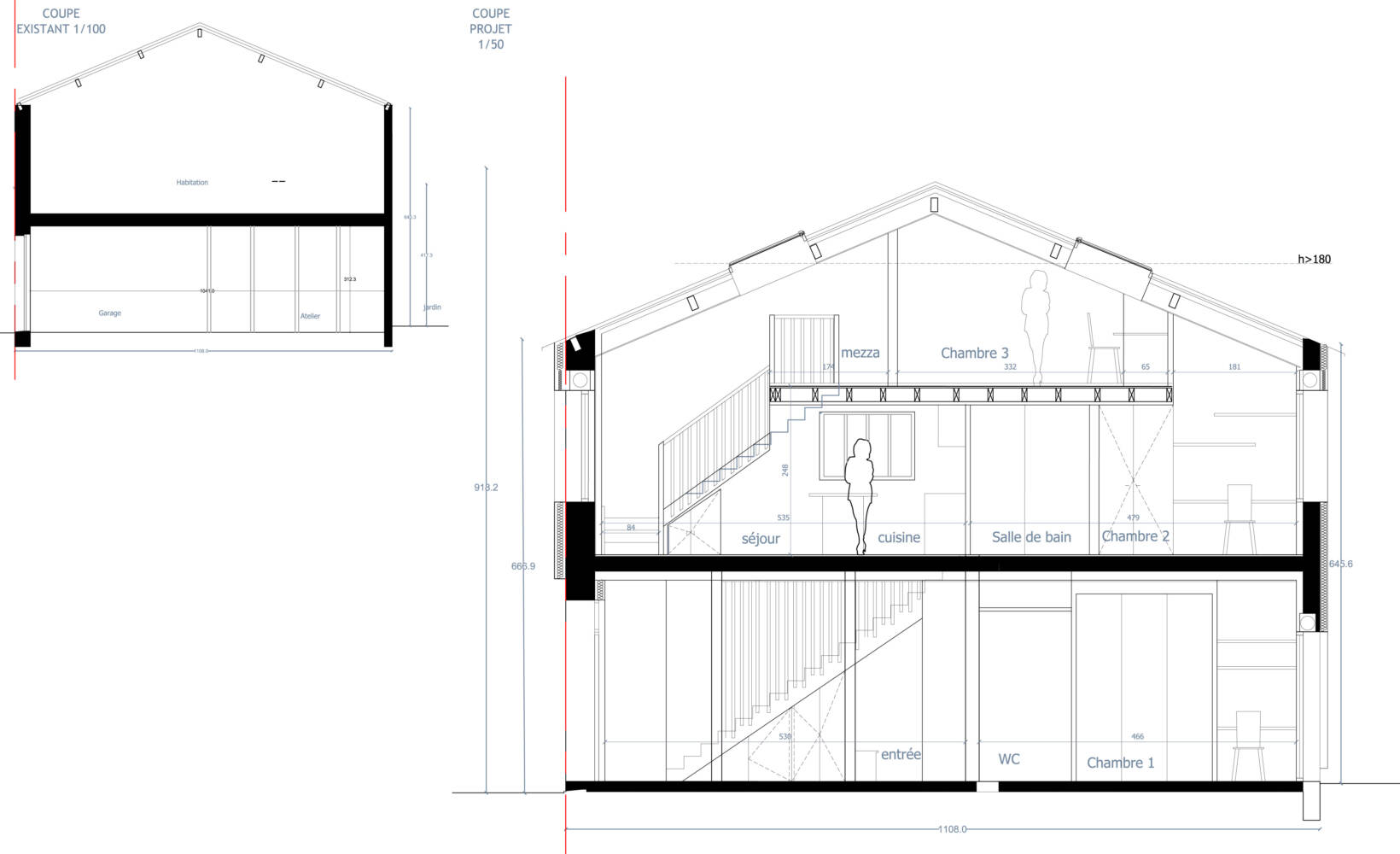
Reconfiguration intérieure sur trois niveaux :

L’aménagement prévoit la transformation du bâtiment en une maison d’habitation sur trois niveaux. La structure étroite impose plusieurs contraintes, notamment la conservation d’une place de stationnement à l’intérieur (obligation réglementaire) et la faible hauteur disponible pour l’aménagement sous combles.

Rez-de-chaussée :
– L’ancien atelier devient une chambre parentale ouverte sur le jardin.
– Un escalier et un couloir sont créés pour desservir la chambre et accéder aux étages sans passer par le garage.

Premier étage :
Les volumes sont travaillés grâce à des variations de hauteur sous plafond. Le séjour et la chambre bénéficient d’espaces plus généreux et lumineux, tandis que le coin cuisine, plus bas, devient un lieu intime et chaleureux.

Combles aménagés :
Environ 20 m² sont récupérés dans les combles perdus. Deux Velux apportent lumière naturelle à la chambre et à la mezzanine.

Ce jeu sur les contrastes de hauteur permet d’optimiser les mètres carrés tout en offrant des volumes agréables et un confort au quotidien.